
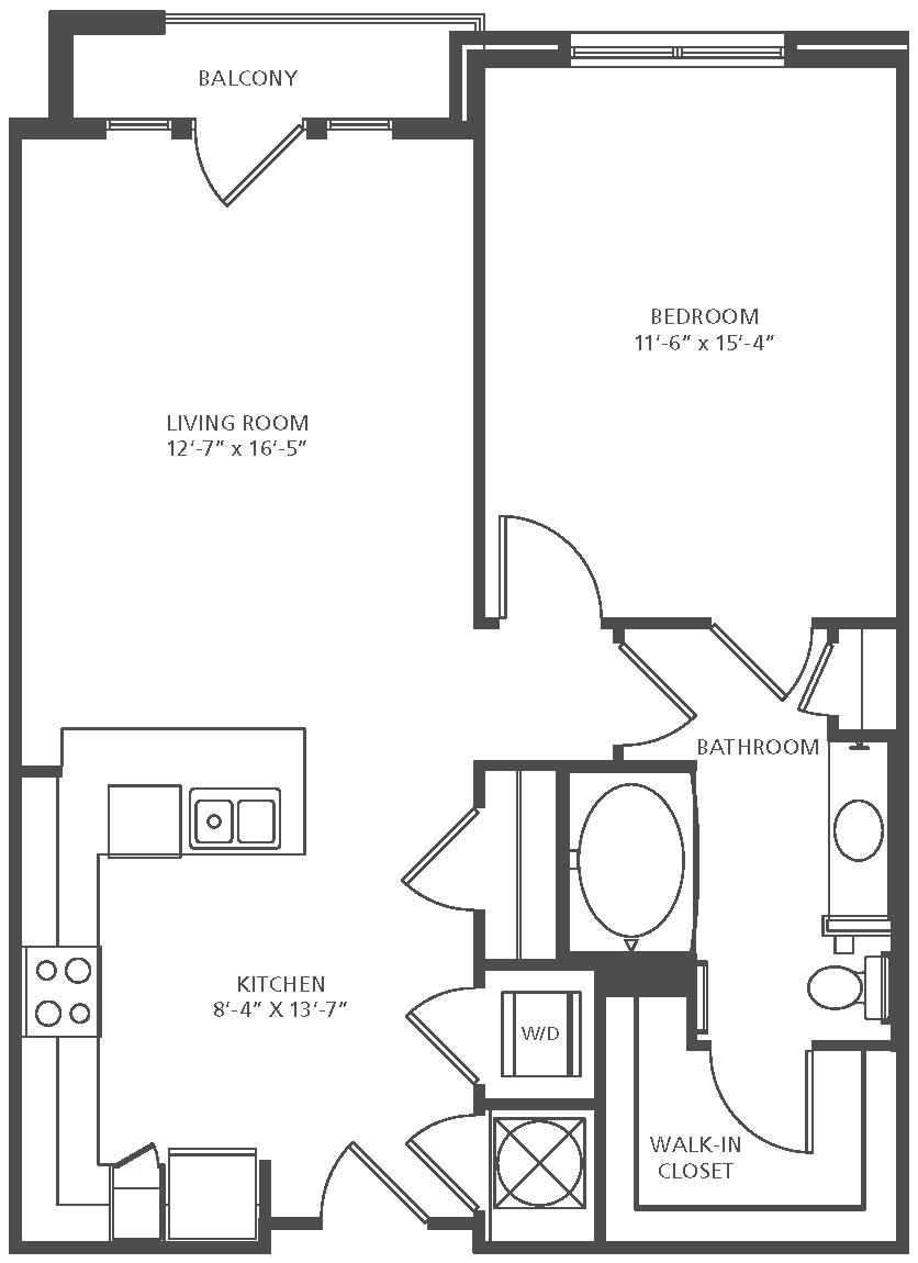
Hey everyone, I’m moving into a new 1BR and could really use some layout advice for the floor plan I've attached. The living room is roughly 12'7" x 16'5", but I’m having some trouble deciding on the best furniture arrangement. I'm specifically wondering if the TV should go on the shorter wall shared with the bedroom or the longer wall on the left, as the right wall is near the doorway and I'm worried about the flow.
I'm also planning on getting a couch with a chaise and am debating which side the chaise should go on. I feel like putting it on the window side would keep the room feeling more open, but I'd like to hear if that actually works well in practice. Finally, I work from home and need a spot for my desk. I’m torn between putting it in the living room or the bedroom (11'6" x 15'4") because I want to avoid overcrowding the main living area without making my bedroom feel too much like an office. I’d appreciate any input or ideas on how you would set this up!
by Actnium
