Search for:

Hi everyone,

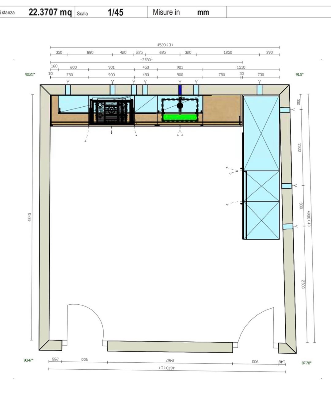
I'm designing my kitchen and need some advice on layout and lighting.

Where would you place the dining table?

Does adding a small sofa make sense or will it overcrowd the space?

Lighting:

Would a single pendant light in the center be enough, or should it be placed over the dining table instead?

I'm also considering recessed spotlights in front of the kitchen worktop – good idea?

Any tips to get even and functional lighting are very welcome.

Thanks!

by Fabio988

Write A Comment