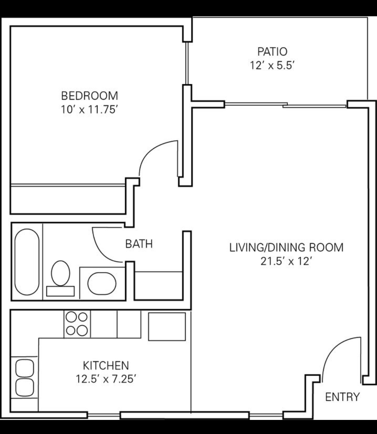
Need suggestion on where to put the tv/sofa, home office and dinning area.feel weird to put the tv on either short wall but also weird to put the sofa on that side. what's other way i should place the furniture and also feel balance. by kmatcha home and gardenhome decoratinghome decorating ideas 1 Comment MineAllMineNow 2 months ago How do you plan to access the kitchen? It’s walled off from everything.Write A CommentYou must be logged in to post a comment.
1 Comment
How do you plan to access the kitchen? It’s walled off from everything.